Data centers are some of the most advanced buildings in the world. They hold complex systems like servers, storage devices, and network equipment. These systems work together to process, store, and protect digital data for everyday business needs.
Designing, building, and managing these facilities is a major task. Large hyperscale sites and small edge sites serve different purposes. Each comes with its own challenges. Understanding these differences lets you build a data center that is reliable, safe, and prepared for future growth.

Data centers bring together advanced power, cooling, and networking systems to support the constant flow of digital information. These facilities are designed for high performance, reliability, and secure data operations.
Types of Data Centers
Data centers have different roles based on an organization’s needs, resources, and goals. The main types include enterprise, colocation, cloud, managed, hyperscale, and edge.
Enterprise Data Centers
Enterprise data centers are private facilities. They are owned and run by one organization for its own IT needs. They offer full control over data and infrastructure. However, they require a large investment in space, power, cooling, and maintenance. Enterprise data centers work well for companies that have the resources to manage their infrastructure, security, and network needs.
Colocation Data Centers
In colocation data centers, many organizations share space to store their IT equipment. The provider takes care of the building, security, power, and cooling. Each customer manages their own servers. This is a great choice for businesses that want a reliable and scalable data center. It helps them avoid the costs and complexities involved in building their own.
Cloud Data Centers
Cloud data centers are groups of data centers operated by cloud service providers. Some well-known providers are Amazon Web Services (AWS), Microsoft Azure, and Google Cloud Platform (GCP). They offer on-demand access to computing resources and services over the internet. This is usually on a pay-as-you-go basis. Cloud data centers offer flexibility, scalability, and lower hardware costs. They’re great for organizations of all sizes.
Managed Services Data Centers
In managed service data centers, a third-party provider takes care of a company’s IT operations inside the facility. This covers maintenance, support, and other services. They can be managed in their entirety or in segments. This model is good for companies that want to hand off daily IT tasks while still maintaining control over their data.
Hyperscale Data Centers
These are huge facilities that support thousands of servers. They focus on optimizing large-scale data storage and processing. Hyperscale centers, built by or for major cloud providers, offer vast capacity and scalability. They’re best for large enterprises and cloud platforms. These platforms handle vast amounts of data and need high-performance infrastructure to function.
Edge Data Centers
Edge data centers are smaller facilities located close to end users. Processing data locally cuts latency and boosts performance. This is key for applications like IoT, autonomous vehicles, and real-time analytics. Edge data centers are ideal for companies needing fast responses and real-time processing.
Data Center Opportunities and Challenges
According to a McKinsey & Company article, The data center balance: How US states can navigate the opportunities and challenges, “by 2030, companies will invest almost $7 trillion in capital expenditures on data center infrastructure globally. More than $4 trillion of it will go toward computing-hardware investments, with the balance going toward areas such as real estate and power infrastructure.”
About 70 percent of the projected demand in 2030 will come from hyperscale. These companies are focusing on building large campuses to capture the value of colocation data centers. This often leads to sites that cover hundreds of acres.
Data centers are also popping up in remote areas. This is because they need more power, land, and cooling. These resources are easier to find away from big cities. Remote sites provide lower costs and access to renewable energy, such as wind and hydroelectric power. They also offer incentives from local governments.
McKinsey & Company predicts, “states that can effectively plan, manage, and mitigate the risks of data center growth stand to unlock millions of dollars in direct and indirect growth. At the same time, they can create high-paying jobs and establish themselves as leading digital-infrastructure hubs.”
Key Challenges in Data Center Construction
Building a data center takes careful planning, strong teamwork, and precise work. These facilities can cover millions of square feet and hold thousands of servers, network tools, and cooling systems. Every system must work to ensure reliable operations and steady growth.
During new construction, expansions, retrofits, and daily management, teams often face several challenges. Understanding these challenges can keep your project organized, safe, and efficient from beginning to end.
Aggressive Timelines
Many data center projects move fast. Teams work on tight schedules and aim to deliver high-quality, safe results. This requires strong planning and clear communication from start to finish.
Retrofitting Existing Structures
Some projects take place inside older buildings. These spaces may have low ceilings or limited floor strength. Teams plan carefully to make sure the space supports modern data center needs.
Complex MEP Integration
Data centers rely on advanced MEP systems. HVAC, cooling equipment, power distribution, and fire protection must all fit together. Coordinating these systems ensures strong performance and reliable operations.
Specialized Technology
Server racks, generators, chillers, and switchgear are essential for uptime. Planning these systems early helps keep the facility running at full strength.
Subcontractor Coordination
Many trades work together on a single project. Clear sequencing and steady communication help every team stay aligned. This supports a smooth build and strong technical results.
Regulatory Compliance
Data centers follow local, national, and industry codes. Clear documentation and regular inspections keep the project on track and ensure it meets all requirements.
How SiteMap® Supports Data Center Construction and Management
You need clear information and strong planning to build, expand, or upgrade a data center. This process also requires dependable coordination. SiteMap® brings all the accurate, field-verified data collected by GPRS into one secure platform. This provides your team with the tools and records to plan, design, and manage your facility with confidence.
With SiteMap, you can view utilities, structures, concrete elements, MEP systems, and more. This helps you make informed decisions in pre-construction, excavation, build-out, and long-term facility management. Your team stays aligned. Your project moves forward, and your operations remain protected.
All Your Data Center Deliverables, Stored and Organized in SiteMap
All field data collected by GPRS goes to SiteMap. This provides a secure platform to view and manage your site information. SiteMap turns these deliverables into interactive records that support safe planning, smart design, and smooth construction.
Deliverables you can find in SiteMap:

3D laser scanning uses LiDAR technology to capture highly accurate as-built conditions of data centers, enabling precise planning, clash detection, and integration with BIM for streamlined construction workflows.
Utility Locating Deliverables
GPRS locates subsurface utilities such as electrical, gas, water, sewer, steam, irrigation, and communication lines. SiteMap stores these maps as clear, interactive layers that help your team plan safe excavation, place equipment, and protect critical systems.
Concrete Scanning Deliverables
Concrete scans identify rebar, conduits, and post-tension cables. In SiteMap, these findings are stored as organized imaging files and maps. Your team can review where it is safe to drill, cut, or core during construction.
Reality Capture Deliverables
GPRS uses LiDAR scanning to capture precise existing conditions of your site. SiteMap displays these scans as 3D models and point clouds that you can open anytime. This supports clash detection, BIM coordination, and accurate layout planning.
Video Pipe Inspection Deliverables
GPRS records the condition and layout of sewer and storm systems with video pipe inspection services. SiteMap keeps these deliverables as searchable files. This helps your team review drainage paths, spot issues, and prepare for construction.
Leak Detection Deliverables
Leak detection results are delivered as maps, images, and documented findings. SiteMap keeps these records in one place, so you can locate problems, protect equipment, and maintain uptime.
How SiteMap Supports Every Stage of Data Center Work
SiteMap gives project teams the clear, accurate information they need at every step of a data center’s life cycle. By bringing all your field-verified documentation into one platform, you can build, upgrade, and manage your facility with confidence.

SiteMap provides facility managers with a comprehensive, real-time digital view of their infrastructure above and below ground, including utility maps, concrete imaging, 2D CAD drawings, 3D BIM models, NASSCO reports, and more.
Data Center New Construction
New data center projects need strong planning and dependable information. SiteMap helps teams see the real site conditions before work begins. Interactive utility maps display the precise locations of power, water, sewer, and fiber lines. This helps ensure safe digging and proper system installation.
After installation, new scans and as-builts are added to SiteMap. These files help your team confirm layouts, reduce surprises, and create a clear foundation for future growth.
Data Center Retrofit
Upgrading a data center requires careful coordination. New power systems, cooling units, communication lines, and storage equipment must fit into the existing layout. SiteMap gives you a real view of current conditions so you can plan each change with confidence.
Structural scans, MEP layouts, and underground utility maps are stored in SiteMap as easy-to-use digital solutions. Teams can see how systems connect. This helps them complete upgrades without disrupting operations.
Data Center Facility Management
After construction, SiteMap becomes a daily tool for facility managers. The software works with BMS and other digital platforms. It helps keep your infrastructure organized and easy to understand.
With SiteMap, you can view utility maps, CAD drawings, 3D models, and video pipe inspection reports from any device. This helps you track assets, support maintenance, prepare for inspections, and plan future improvements.
Data Center Real Estate Transactions
Accurate digital records are valuable during real estate transactions. SiteMap gives buyers and sellers a clear view of the site’s infrastructure, including utilities, MEP systems, and structural details.
These interactive records can speed up due diligence, support transparency, and help both sides understand the facility’s true condition. Teams can review layouts, confirm equipment locations, and plan future upgrades before closing.

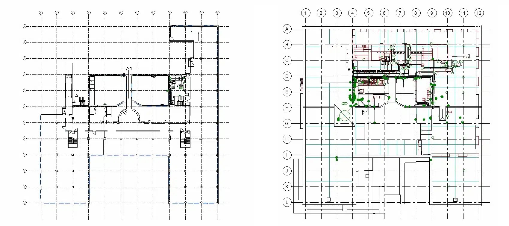
2D CAD drawings help visualize the layout and structural details of a data center. These plans support accurate design, clear coordination, and informed decision making throughout construction and facility management.
Accuracy Matters in Data Center Planning and Management
Data centers continue to grow and evolve to support modern business needs. With major investments across the industry, having clear and accurate information has become more important than ever. SiteMap gives your team the tools to plan, build, and manage data centers with confidence.
When you have access to accurate solutions inside a single platform, you can move faster, work safer, and support your facility at every stage of its life cycle.
Tell us more about your facility and we will show you what SiteMap can do for you. Click below to schedule your personal demo today!
